
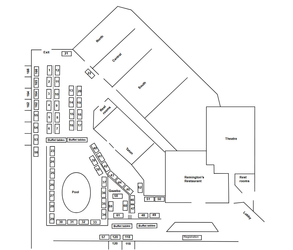
1. EJ USA
2. Flowpoint Environmental Systems
3. American Flow Control
4. LaTech Equipment
5. M&H/Kennedy Valve
6. RepMasters
7. Core and Main
8. Core and Main
9. TerraGenesis, LLC
10. APSCO LLC
11. Sunrise Engineering
12. Energy Laboratories Inc
13. BioLynceus LLC
14. American AVK Company
15. Timber Line Electric & Control
16. Core and Main
17. Core and Main
18. Kois Brothers Equipment Company
19. Dorsett Controls
20. Curb Box Specialists
21. Midco Diving & Marine Service
22. Intermountain Sales Inc.
23. Dawson Infrastructure Solutions
24. Diamond Maps
25. Metron
26. Advanced Pump & Equipment
27. Advanced Pump & Equipment
28. Advanced Pump & Equipment
29. Joe Johnson Equipment
30. Imperial Pump Solutions
31. USEPA Region 8
32. HDR Engineering, Inc.
33. ISCO Industries
34. LaTech Equipment
35. Maguire
36. Streamline Sales & Marketing
37. Beabout Brock Easley
38. Clow Valve Company
39. Hawkins, Inc.
40. USDA Rural Development
41. Rocky Mountain Valves & Automation
42. CUES, Inc.
43. Tru Pipe Inc.
44. PVS DX, Inc
45. Water Technology Group
46. Hobas Pipe
47. Local Government Liability Pool
48. SAERTEX multiCom
49. Hach
50. Pipestone Equipment
51. Pipestone Equipment
52. Fusion Inspections and Consultants LLC
53. Spectrashield Liner Systems
54. Team Laboratory Chemical, LLC
55. Tank Maintenance Solutions
56. Ford Meter Box
57. Source Equipment
58. Sargent Drilling
59. CISA
60. EZ Industries
61. Jet Line Sales & Service
118. Frontier Precision
120. Extra Air
162. Larson Data Communications
164. Ferguson
165. Ten Point Sales & Marketing, LLC
166. Ten Point Sales & Marketing, LLC

